3D Layout Engineering for Environmental Solutions in Paper Mills
3D layout engineering uses digital plant modeling to visualize, design, and integrate new meri equipment in the environmental process facilities within a mill for green field plants or upgrades.
It ensures that piping, cabling, equipment, and structures fit together seamlessly before manufacturing and on site assembly begins.

Key functions
- Equipment Placement & Layout
- Positioning meri WSR, Material Handling ant ETP – equipment, auxiliaries tanks, reactors, pumps, blowers, gangways scaffolding and support steel works
- Optimizing space in tight and crowded brownfield sites.
- Piping & Cable Routing
- Designing process piping, water distribution, chemical lines, sludge pipelines, conveyor tracks, tank arangements in 3D.
- Planning cable trays, power lines, and instrumentation cabling alongside piping to avoid clashes.
- Clash Detection & Interference Checks
- Identifying conflicts between piping, ducts, cable trays, and structures before site execution.
- Reducing costly rework and delays.
- Construction & Maintenance Accessibility
- Designing layouts for safe operator access, maintenance clearance, lifting/hoisting paths.
- Ensuring compliance with safety norms.
- Integration with Existing Mill
- Overlaying environmental systems (ETPs, odor control, sludge handling) with existing production facilities.
- Minimizing downtime during retrofits or expansions.
Importance & Advantages
- Accuracy & Efficiency → Reduces errors by visualizing the complete system in 3D before fabrication.
- Cost Savings → Early clash detection avoids rework, which can save up to 10–15% of project cost.
- Time Optimization → Faster installation thanks to pre-fabrication drawings and exact routing data.
- Better Coordination → Facilitates collaboration across process, civil, piping, mechanical, electrical, and automation teams.
- Safety & Compliance → Ensures adherence to ergonomic standards, maintenance clearances, and environmental safety norms.
- Enhanced Communication → 3D models are intuitive for operators, managers, and regulators—improving project buy-in.
- Lifecycle Benefits → The model becomes a digital twin for operation, maintenance, and future upgrades.
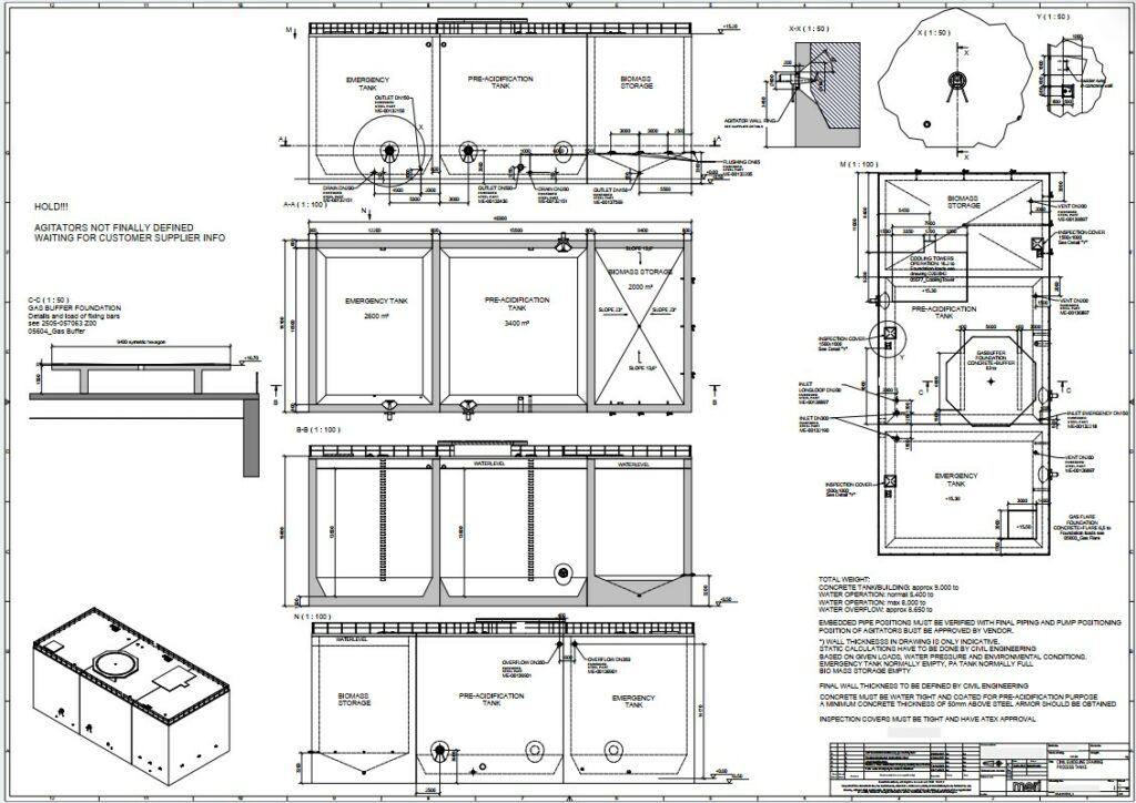
Typical Scopes of 3D Layout Engineering in Paper Mill Environmental Projects
- 3D Modeling
- ETP structures (clarifiers, aeration tanks, sludge thickeners, digesters).
- Sludge handling units (belt presses, centrifuges, dryers).
- Air emission systems (scrubbers, chimneys, ducts).
- Pipe racks, pump houses, and cable trays.
- Piping Engineering
- Process and utility piping (water, chemicals, sludge, steam, compressed air).
- Stress analysis and support design.
- Isometric drawings for fabrication.
- Electrical & Instrumentation
- Cable tray routing in 3D, avoiding clashes with piping.
- Equipment layouts for MCCs (Motor Control Centers).
- Instrument location and junction box layouts.
- Civil/Structural Coordination
- Concrete tank structures, foundations, steel pipe racks, platforms, walkways.
- Integration of equipment loads and access requirements.
Typical Documents & Deliverables
3D Deliverables
- Full 3D Plant Model (environmental system integrated into mill).
- Clash detection reports.
- NAVIS Works Walkthrough simulations for client/operator review.
- Bill of Materials (BOM) directly extracted from 3D model.
- Digital Twin (optional) for operations and maintenance.
2D Deliverables (extracted from 3D)
- General Arrangement (GA) Drawings.
- Equipment Layouts.
- Piping Isometrics with MTO (Material Take-Off).
- Cable Routing Layouts.
- Civil Interface Drawings (tank foundations, pipe rack footings).
- Sectional Drawings for installation guidance.


